Steel Look ST1000

Système de fenêtres et de portes à isolation thermique avec des profilés permettant d’imiter des constructions en acier

 
Steel Look ST1000

CARACTÉRISTIQUE

Steel Look ST1000 est un système de fenêtres et de portes à isolation thermique caractérisé par une ligne de profilé  lisse et élancée. La forme spécialement développée du profilé rend les fenêtres et les portes basées sur ce système très similaires aux structures en acier, grâce auxquelles elles se distinguent par un caractère industriel et moderne. La forme du profilé (rendant la structure similaire aux profilés en acier) fait d’Aliplast Steel Look ST1000 un produit unique sur le marché. Le système Steel Look ST1000,  à part  un design moderne, se distingue par de bonnes propriétés thermiques au niveau de 2,56 W / m2k. Le système se caractérise également par de larges possibilités de personnalisation grâce à la riche palette RAL, aux couleurs structurelles, aux couleurs imitation bois (Aliplast Wood Color Effect), anodisées et bicolores. Le système Aliplast Steel Look ST1000 sera parfait pour le bâtiment moderne.

AVANTAGES DU SYSTÈME

Design unique

L’utilisation de profilés en aluminium de forme spécifique rend le système Aliplast Steel Look ST1000 un produit au design unique. Les profilés utilisés se caractérisent par une ligne lisse et élancée, grâce à laquelle ils confèrent à l’ensemble de la structure un caractère industriel et moderne. Grâce à une large gamme de couleurs, le système Aliplast Steel Look ST1000 permet une parfaite adéquation des fenêtres et des portes à la façade et à l’intérieur. Le système Aliplast Steel Look ST1000 est parfait pour la construction de fenêtres à un ou deux vantaux, ouvrant vers l’intérieur. Son design inhabituel et caractéristique en fait une proposition idéale pour une utilisation dans des projets inhabituels. Le système est également parfait pour les vitrines fixes, les vitrages simples et doubles.

Aliplast Steel Look Okna i Drzwi Tarnowskie Góry
Encore plus de lumière

La structure unique et spécialement développée de la fenêtre et de la porte, grâce à des profilés en aluminium minces et lisses, permet un meilleur accès de lumière solaire à l’intérieur. Le système Aliplast Steel Look ST1000 se caractérise également par une structure solide et durable, parfaite pour l’usage quotidien.

Aliplast Steel Look ST1000 Okna i Drzwi Tarnowskie Góry
Multitude de possibilités

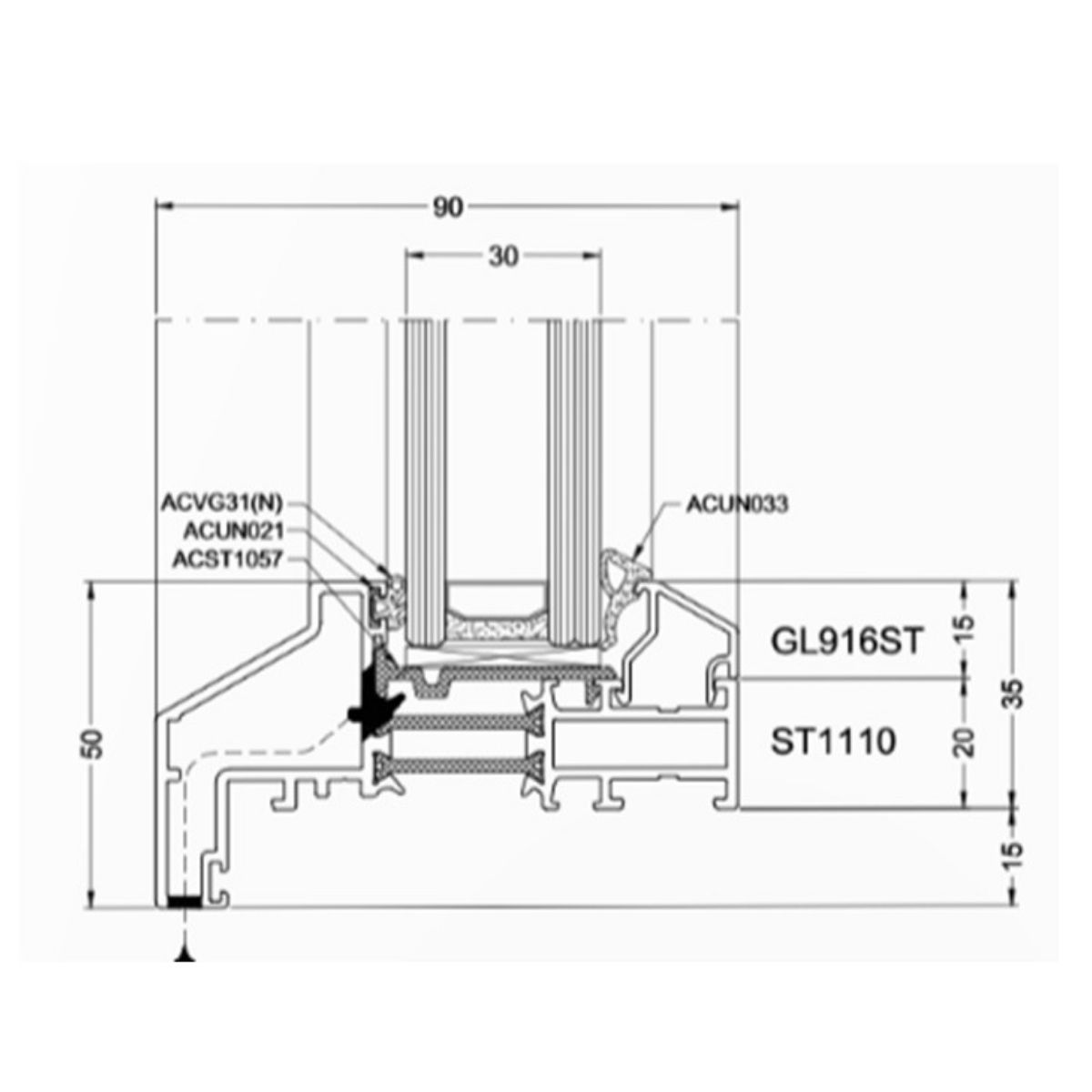
Aliplast Steel Look est une solution aux larges possibilités. La variante ST1010 à dormant approfondi est montée de l’intérieur tandis que la ST1110 peut être montée de l’extérieur grâce à  un dormant approfondi à languette. La variante ST1210 vous permet d’utiliser un dormant étroit et la ST1012 un dormant large qui laisse plus d’espace pour les charnières à l’intérieur.

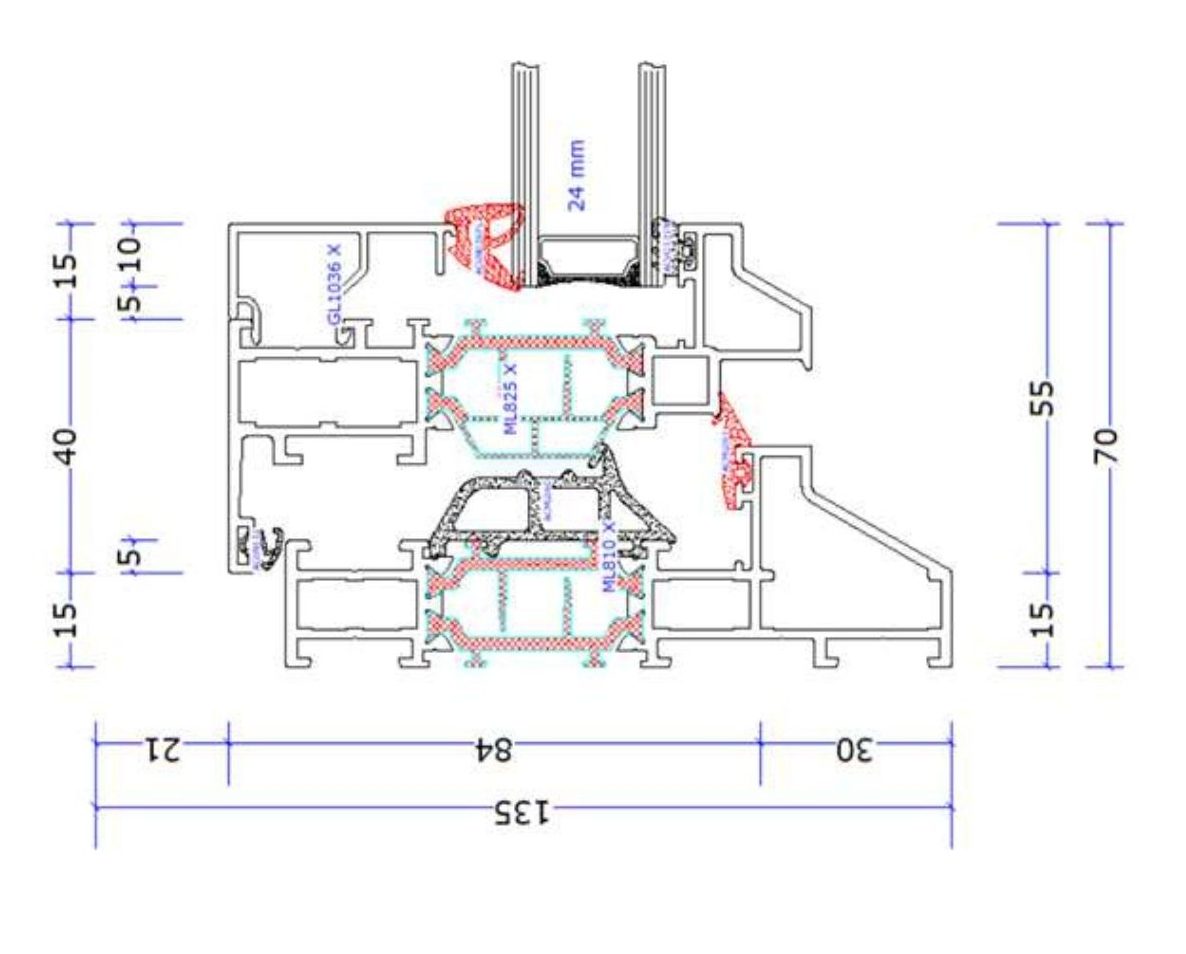
COUPES

Variantes de profil

Caractéristiques du système

Profondeur du dormant

90 mm

Profondeur de l’ouvrant

74,4 mm

Épaisseur du vitrage

5–43 mm

Isolation thermique Uf*

Uf à partir de 1,85 W/m²K

Perméabilité à l’air

Classe 4 ; PN-EN 12207

Résistance au vent

Classe 7A (300 Pa) ; PN-EN 12210

Étanchéité à l’eau

Classe C4 (1600 Pa) ; PN-EN 12208

VITRAGES

Vitrage standard 4/18/4/18/4 Ug = 0,5 W/m2K, intercalaire chaud Swisspacer | Possibilité d'utiliser des vitrages de 14 à 68 mm d’épaisseur| Grand choix de verres : verre de sécurité, trempé, antieffraction, antisolaire, acoustique, décoratif.

QUINCAILLERIE

GU | En standard: gâches antidégondage, rehausseur du vantail, micro-ventilation et anti-fausse manœuvre.

POIGNÉES

Fenêtres – en standard les poignées en aluminium Hoppe Secustic, couleurs: argent, blanc 9016, marron 8019, anthracite 7016, noir mat 9005, or, inox.

COULEURS

COULEURS STANDARD
COULEURS PERSONNALISÉES
COULEURS BOISÉES
TIGER - VERNIS STRUCTUREL

GALERIE