ACS 38

Système de cloisons acoustiques

 
ACS 38

Caractéristiques

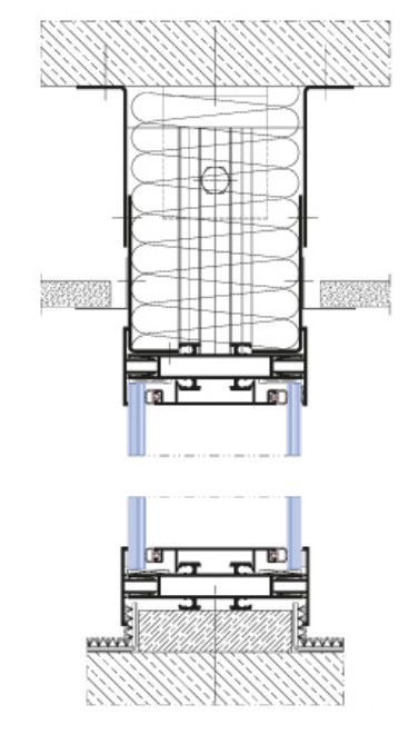
Le système Aluron ACS 38 Office est une solution dédiée à la création de cloisons, boxes et vitrines modernes, acoustiques et non isolées thermiquement. Grâce à ce système, il est possible de réaliser des structures élancées en aluminium pour les murs et cloisons intérieurs, offrant de hautes performances fonctionnelles et esthétiques. Le système permet l’utilisation de différentes constructions de portes avec les cadres les plus étroits de type SLIM. Un autre avantage est la possibilité d’intégrer des stores entre vitrages, commandés manuellement ou automatiquement. Le système peut être utilisé dans des immeubles de bureaux de classe A. Il dispose également d’une Évaluation Technique Nationale.

Avantages du Système

Accès maximal à la lumière

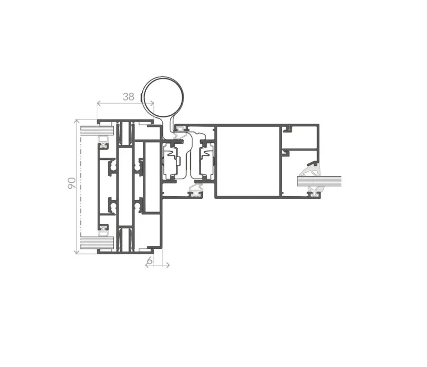
Le système Aluron Office ACS 38 assure un accès maximal à la lumière naturelle grâce à sa conception. Sa structure élancée – montants d’une largeur de seulement 38 mm – associée à un cadre visible de 6 mm garantit un maximum de lumière pour les portes vitrées. Ce système est donc idéal partout où l’esthétique et l’apport de lumière naturelle sont particulièrement importants.

Solutions techniques

Le système Aluron ACS 38 se distingue par de nombreuses solutions techniques modernes. Le produit permet l’intégration de stores entre vitrages, commandés manuellement ou automatiquement.
Un niveau élevé de fonctionnalité et de sécurité est assuré par une classe de résistance III et une classe d’exploitation IV. Le système est compatible avec les portes en aluminium ACS 50.

Large palette de couleurs

Les cloisons, boxes et vitrines réalisés avec le système Aluron ACS 38 sont disponibles dans toutes les couleurs de la palette RAL. Ils peuvent également être réalisés avec un revêtement effet bois, ainsi qu’avec le système Decoral, qui comprend des imitations de marbre, de granit et d’autres motifs décoratifs.

Bogata kolorystyka. Okna i drzwi do domów pasywnych Star 90. Profilnet Tarnowskie Góry.

Sections Transversales

Paramètres du système ASC 38

Largeur de la structure du cadre

90 mm

Largeur du montant

38 mm

Plage d’épaisseur des remplissages opaques

5-84 mm

Hauteur maximale des cloisons

5300 mm

Plage de vitrage

5-13 mm

Hauteur maximale des parois

5300 mm

Largeur visible minimale du dormant

38 mm

Surface maximale du module de vitrage

jusqu’à 6,0 m²

Entraxe des montants verticaux

jusqu’à 2500 mm

Isolation acoustique pour la version opaque

jusqu’à 52 dB

Isolation acoustique pour la version transparente

jusqu’à 46 dB

Perméabilité à l’air

0,01 m³ (m·h·daPa²/³)**

Couleurs

Couleurs standard
Couleurs personnalisées
Couleurs imitant le bois
Peinture structurale

Galerie