AS 178HS PRO SLIM
Système coulissant-levant innovant tout en verre
Le système de portes levantes-coulissantes AS 178HS MODERN est destiné à la réalisation de portes levantes-coulissantes de grandes dimensions avec isolation thermique, dont le design s’intègre parfaitement à l’architecture contemporaine. Le système offre de larges possibilités de construction et d’excellentes performances thermiques, similaires à celles de la variante AS 178HS Pro Slim.
L’utilisation du même profilé des deux côtés de la structure permet en outre d’améliorer l’optimisation des matériaux.
En raison d’un ensemble d’améliorations techniques, le système AS 178HS MODERN permet une préfabrication rapide et un montage simple. Le nombre d’éléments nécessaires à la réalisation de la construction a été réduit d’environ 35 % par rapport aux autres solutions disponibles sur le marché.
L’introduction de profils de cadre coupés à 90 degrés, assemblés à l’aide de vis, permet le transport du cadre en plusieurs parties et l’assemblage de la construction directement sur le chantier.
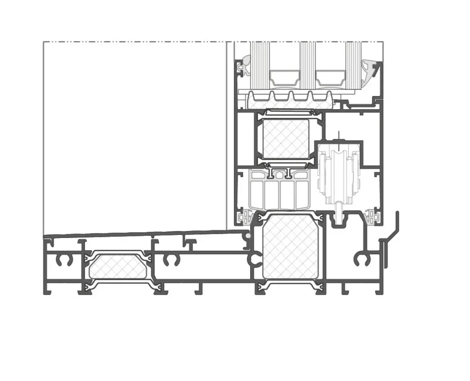
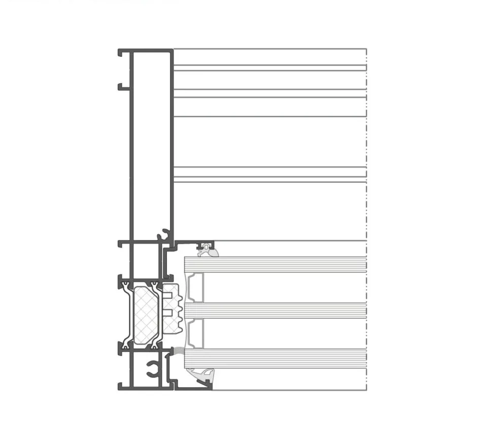
Le mécanisme de roulement ainsi que la partie fixe de la construction sont entièrement dissimulés dans le sol. Les utilisateurs ne voient qu’une fine fente de 9 mm de largeur, qui permet un déplacement facile et fluide du vantail de la porte.
La solution à fente est une variante 100 % sans seuil. Le fait de dissimuler tous les mécanismes sous la surface du sol améliore non seulement l’esthétique, mais aussi la fonctionnalité et le confort d’utilisation au quotidien. De plus, cette solution offre une totale liberté d’aménagement du sol à la jonction entre la terrasse et l’intérieur.


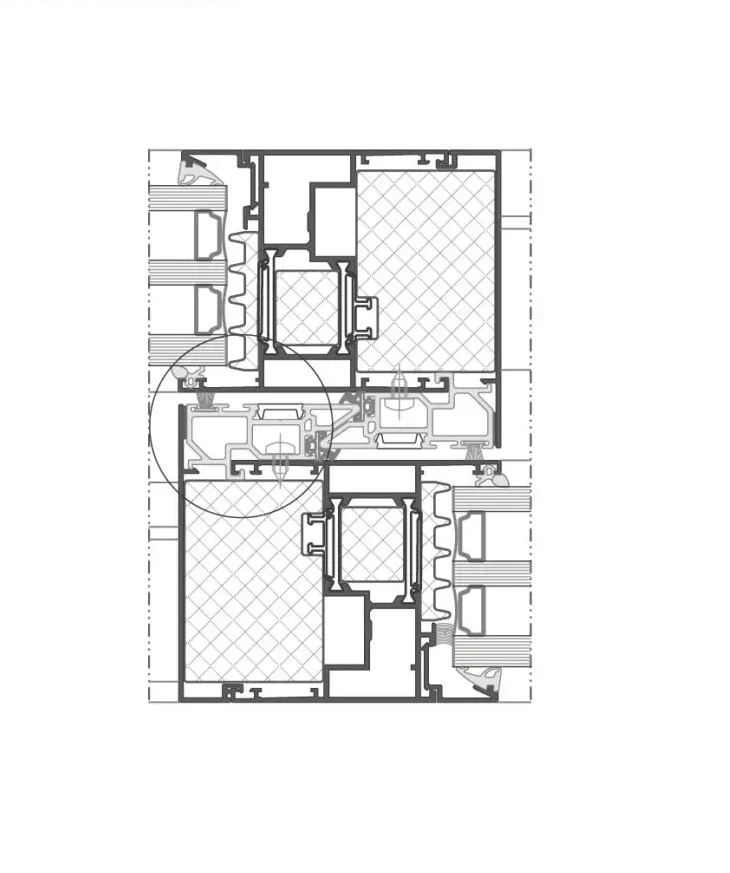
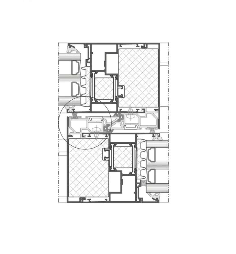
Le système est disponible dans les configurations A, C, G et K. Il permet la réalisation de coins entièrement vitrés – intérieurs comme extérieurs – sans nécessité de profils de recouvrement supplémentaires, ce qui permet d’obtenir une surface élégante et plane des deux côtés du système HS. Un joint acoustique monté sur tout le périmètre de l’ouvrant ainsi qu’un nouveau clip pour le vitrage fixe ont été appliqués, éliminant ainsi la nécessité de visser le profilé au cadre.
Le système propose également en standard un système d’étanchéité supplémentaire de l’ouvrant dissimulé, sans cache en plastique visible. Il permet l’automatisation du déplacement des vantaux de porte et est compatible avec un drainage linéaire, une moustiquaire système, un garde-corps entièrement vitré ainsi qu’un vantail de ventilation.
De plus, il est possible d’utiliser des ferrures avec gâche dissimulée dans la crémone, sans nécessité de fraisage supplémentaire pour le logement de la gâche, ainsi que de dissimuler le cadre dans la couche d’isolation.
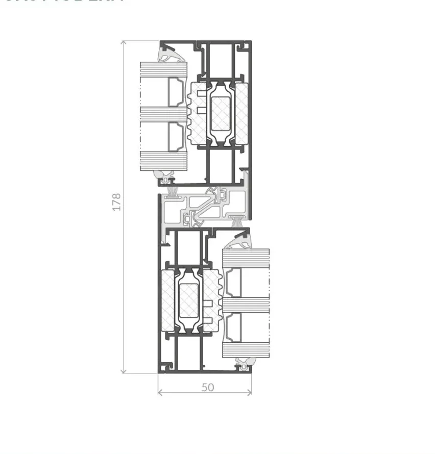
Les constructions sont réalisées sur un cadre de type MONORAIL, garantissant une excellente transparence de la partie fixe du système HS.
La surface vitrée plus importante permet de laisser entrer davantage de lumière naturelle à l’intérieur, ce qui donne à l’espace une impression de plus grande ouverture et de volume.
Le système est disponible en variantes avec montant central: Standard, 50 mm et 25 mm pour les projets les plus exigeants, permettant d’augmenter considérablement la surface vitrée.


|
Profil |
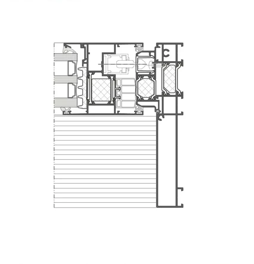
profondeur de l’ouvrant 78 mm |
|
Vantaux |
hauteur/largeur maximale du vantail : 3300 mm |
|
Poids maximal du vantail |
600 kg |
|
Épaisseur maximale du vitrag |
59 mm |
|
Montant étroit |
25 mm / 50 mm |
Les utilisateurs apprécient le système AS 178HS dans la version MODERN прежде tout pour le grand confort d’utilisation au quotidien et la sensation d’espace offerte par les très grandes surfaces vitrées. Ils soulignent que les intérieurs sont mieux éclairés par la lumière naturelle, plus ouverts sur l’extérieur et visuellement plus spacieux, sans compromis en matière d’isolation thermique. Un atout important est l’absence de seuil, qui améliore considérablement le confort et la sécurité, notamment dans les maisons avec des enfants, des personnes âgées ou lors d’une utilisation intensive de la terrasse.
Les utilisateurs mettent également en avant l’esthétique moderne et minimaliste du système : un montant central étroit, un nombre limité d’éléments visibles et des détails élégants et cohérents. Dans la pratique, ils apprécient aussi le fonctionnement fluide et silencieux des vantaux, même pour des dimensions très importantes, ainsi que la grande étanchéité, qui se révèle efficace par temps venteux et lors de fortes précipitations. Le système est perçu comme solide, durable et fiable au quotidien, ce qui se traduit par un haut niveau de satisfaction sur le long terme.