Portes d’entrée AS 75P

Système de portes à panneau

 
Portes d’entrée AS 75P

Caractéristiques

Le système AS 75P est une construction en aluminium pour portes à panneau réalisée à partir de profilés à 3 chambres, offrant d’excellentes performances d’isolation et des paramètres techniques élevés. Ce système est destiné à la fabrication de portes thermiquement isolées avec un panneau collé sur toute la surface du vantail. Il s’intègre parfaitement dans des bâtiments modernes et intelligents, mais aussi dans des architectures classiques. Les portes à panneau du système AS 75P sont destinées à une installation individuelle ainsi qu’à des façades vitrées (vitrines). La fabrication solide, la durabilité de l’aluminium et la grande variété de designs garantissent une résistance et une esthétique durables pendant de nombreuses années.

LES AVANTAGES DU SYSTÈME

Construction solide et solutions innovantes

Système à trois chambres destiné à la fabrication de portes thermiquement isolées équipées d’un panneau collé sur toute la surface du vantail. Il s’intègre parfaitement aussi bien dans les bâtiments modernes que dans les constructions classiques. Les portes à panneau du système AS 75P sont destinées aux installations individuelles ainsi qu’aux vitrines. La qualité de fabrication, la durabilité de l’aluminium et la richesse des designs garantissent une grande longévité, tandis que la possibilité de réaliser des panneaux affleurants sur une ou deux faces assure une esthétique exceptionnelle.

Design

Panneaux disponibles en plusieurs versions: opaque, avec éléments transparents, entièrement vitrée, avec applications en acier inoxydable. Possibilité de réaliser des projets et motifs personnalisés – fraisage de formes et d’ouvertures. Types de charnières disponibles: apparentes, à rouleaux, invisibles (cachées). Le système est également disponible dans la version GLASS LINE avec panneau entièrement vitré.

Fonctionnalité

• Construction des profilés en aluminium à trois chambres
• Serrures multipoints en standard, serrures électromotorisées disponibles
• Quatre variantes thermiques
• Portes ouvrant vers l’intérieur ou vers l’extérieur
• Nouvelles solutions : poignée encastrée avec éclairage LED intégré et lamelles décoratives
• Possibilité de réaliser des portes à un ou deux vantaux avec partie latérale vitrée ou imposte supérieure

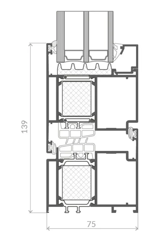
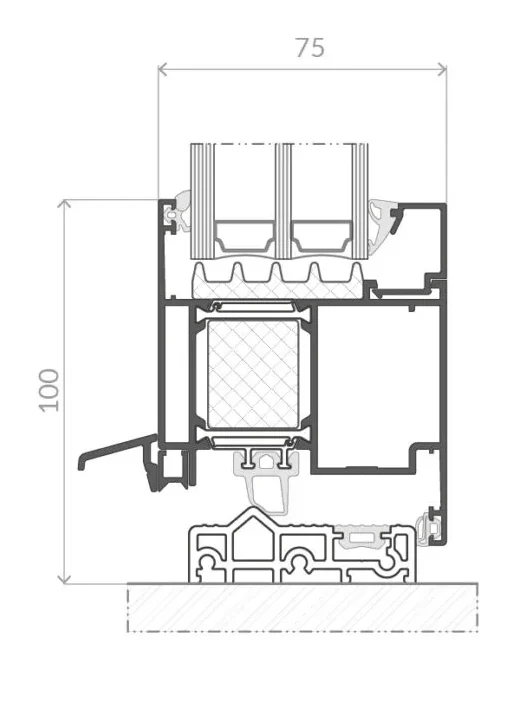
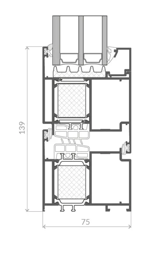
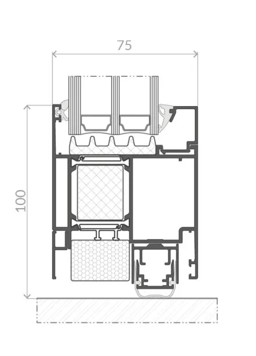
SECTIONS

Dimensions maximales de la porte

1400 mm x 3000 mm

Poids maximal

200 kg

Profondeur des profilés de porte

75 mm

Épaisseur de vitrage

17-57 mm

Isolation thermique Uw de la porte (4 variantes)

od 0,93 W/m2K

Largeur visible minimale du cadre

69 mm

Largeur visible minimale du vantail

65 mm

Couleurs

Couleurs standard
Couleurs personnalisées
Couleurs aspect bois
TIGER - peinture texturée