Porte en pierre Stone line
Une ligne de portes en aluminium inspirée par la beauté et les caractéristiques de la pierre naturelle
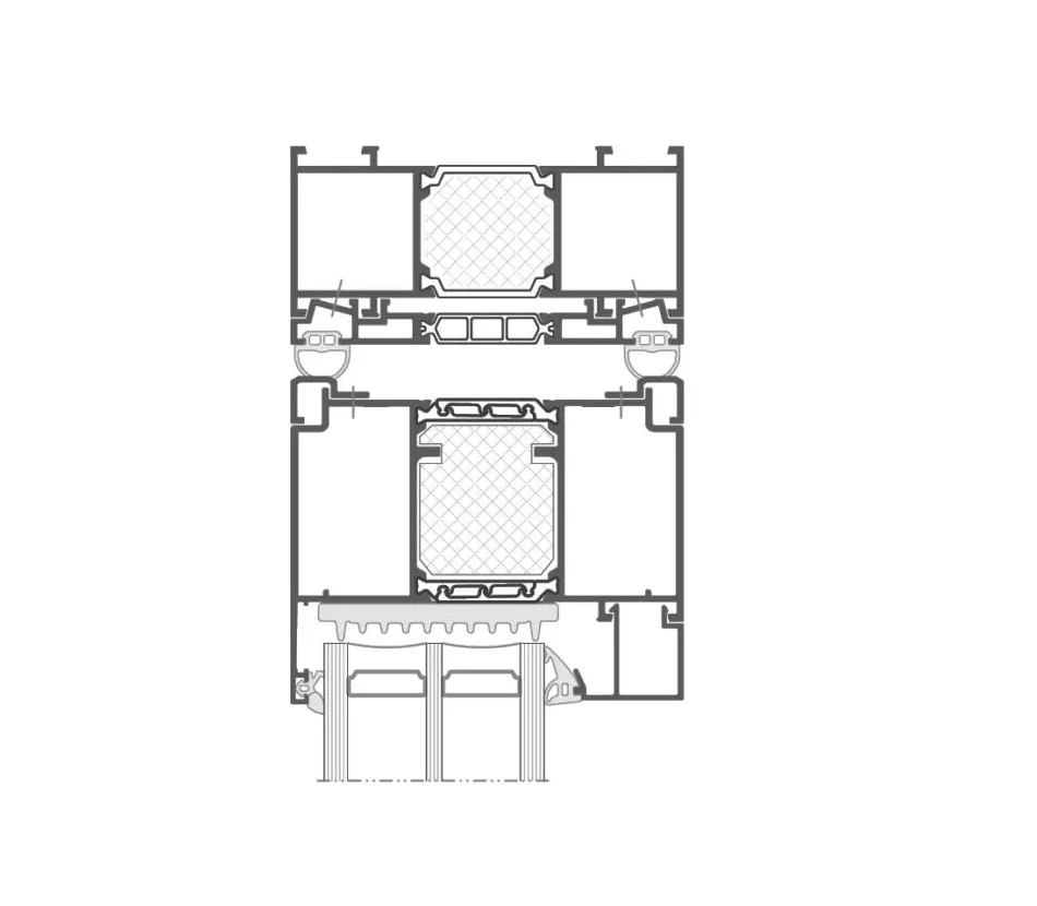
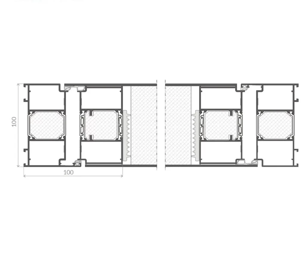
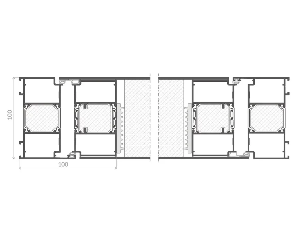
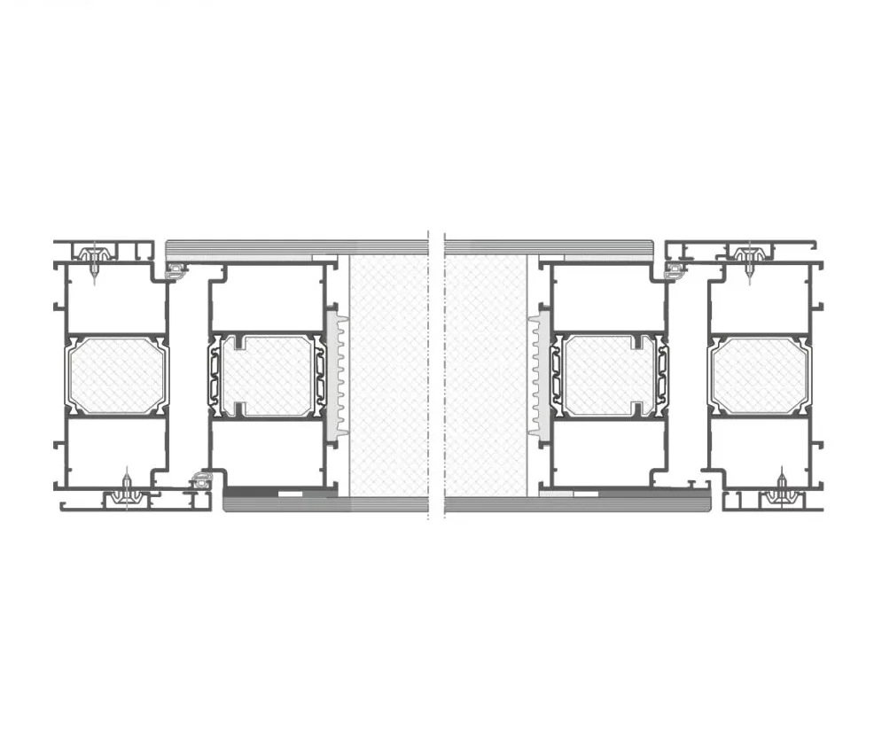
Le système de portes AS 100 PIVOT avec axe de rotation décalé est destiné à la construction de portes extérieures à un ou deux vantaux. Sa caractéristique principale est l’axe de rotation décalé, qui leur confère un aspect original, moderne et particulièrement spectaculaire. La construction du système utilise des joints écologiques en TPE ainsi que des intercalaires anti-bimétalliques divisés, qui protègent les portes contre les déformations provoquées par les différences de température. L’étanchéité des portes est encore améliorée par un joint automatique escamotable qui s’abaisse lors de la fermeture du vantail. Le seuil automatique protège contre la pénétration du froid, de la poussière, de l’eau et du bruit. Le design exceptionnel a été obtenu grâce à la dissimulation systémique de tous les éléments de fixation (vis et fixations).
Les vantaux AS 100 Pivot sont disponibles en trois variantes de remplissage:
avec vitrage isolant,
avec panneau de porte, ainsi que dans la version Glass Line,
avec verre émaillé élégant collé des deux côtés du vantail.

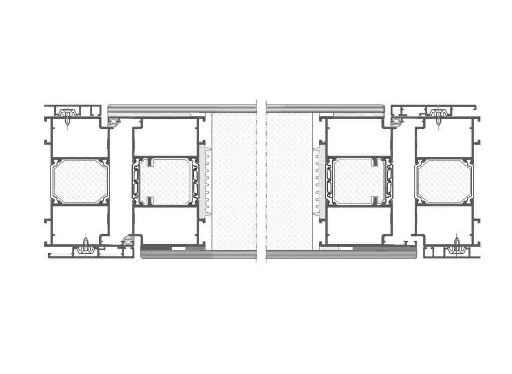
Possibilité de combiner avec vitrages latéraux et impostes supérieures sans duplication des profilé
Système compatible avec des solutions de drainage linéaire
Possibilité d’utiliser des charnières invisibles, une serrure électromotorisée et des gâches électroniques Instinct
Possibilité d’équiper la porte d’une élégante bande LED éclairant le seuil
Contrôle d’accès par lecteur d’empreintes digitales, clavier numérique, télécommande ou smartphone
Ouverture des portes vers l’intérieur ou vers l’extérieur
Possibilité d’équiper la porte d’une poignée encastrée exclusive Aluron
Solution sans feuillure.
La construction utilise des joints écologiques en TPE ainsi que des intercalaires anti-bimétalliques divisés, qui protègent les portes contre les déformations causées par les différences de température. L’étanchéité exceptionnelle de la porte est assurée par un joint automatique escamotable qui s’abaisse lors de la fermeture du vantail. Le seuil automatique empêche la pénétration du froid, de la poussière, de l’eau et du bruit.
|
Isolation thermique Ud |
à partir de 0,6 W/m²K |
|
Perméabilité à l’air |
classe 3 |
|
Étanchéité à l’eau |
classe 6A |
|
Résistance à la charge du vent |
classe C3/B3 |
|
Hauteur maximale du vantail |
3500 mm |
|
Largeur maximale du vantail |
2000 mm |
|
Poids maximal du vantail |
500 kg |
|
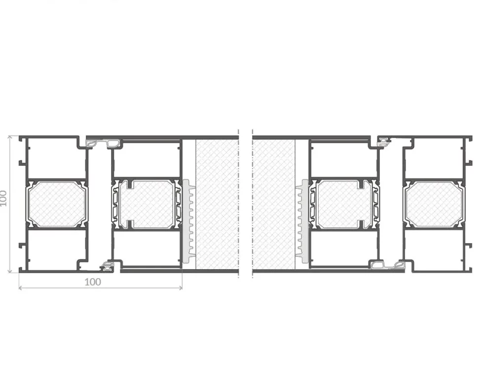
Profondeur du cadre – panneau décoratif |
100 mm |
|
Profondeur du vantail – panneau décoratif |
94 mm / 97 mm |
|
Épaisseur maximale du panneau |
100 mm |
|
Profondeur du cadre – vitrage inséré |
100 mm |
|
Plage de vitrage – vitrage inséré |
37-80 mm |
|
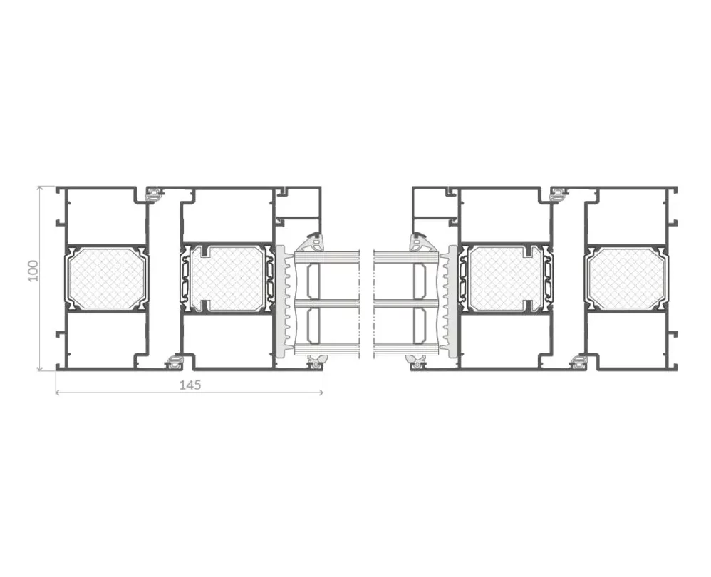
Assemblage cadre et vantail – vitrage inséré |
145 mm |
|
Profondeur du cadre – variante Glass Line |
100 mm |
|
Profondeur du vantail – variante Glass Line |
100 mm |