ZIP – SCREEN ECO

Protection moderne pour grandes surfaces vitrées et espaces outdoor

 
ZIP – SCREEN ECO

Caractéristiques

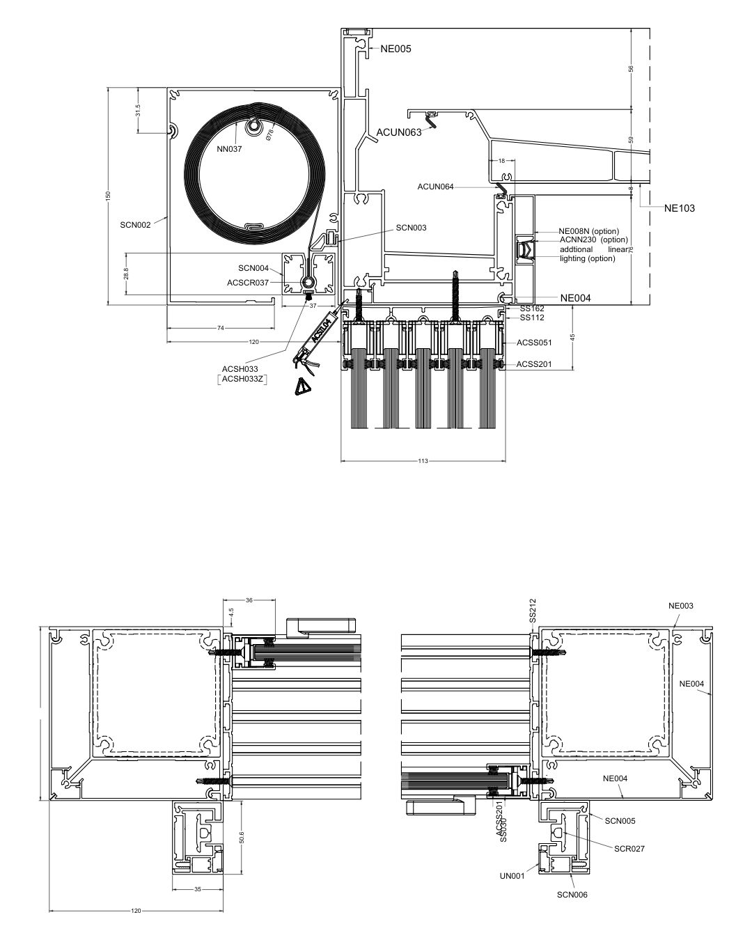
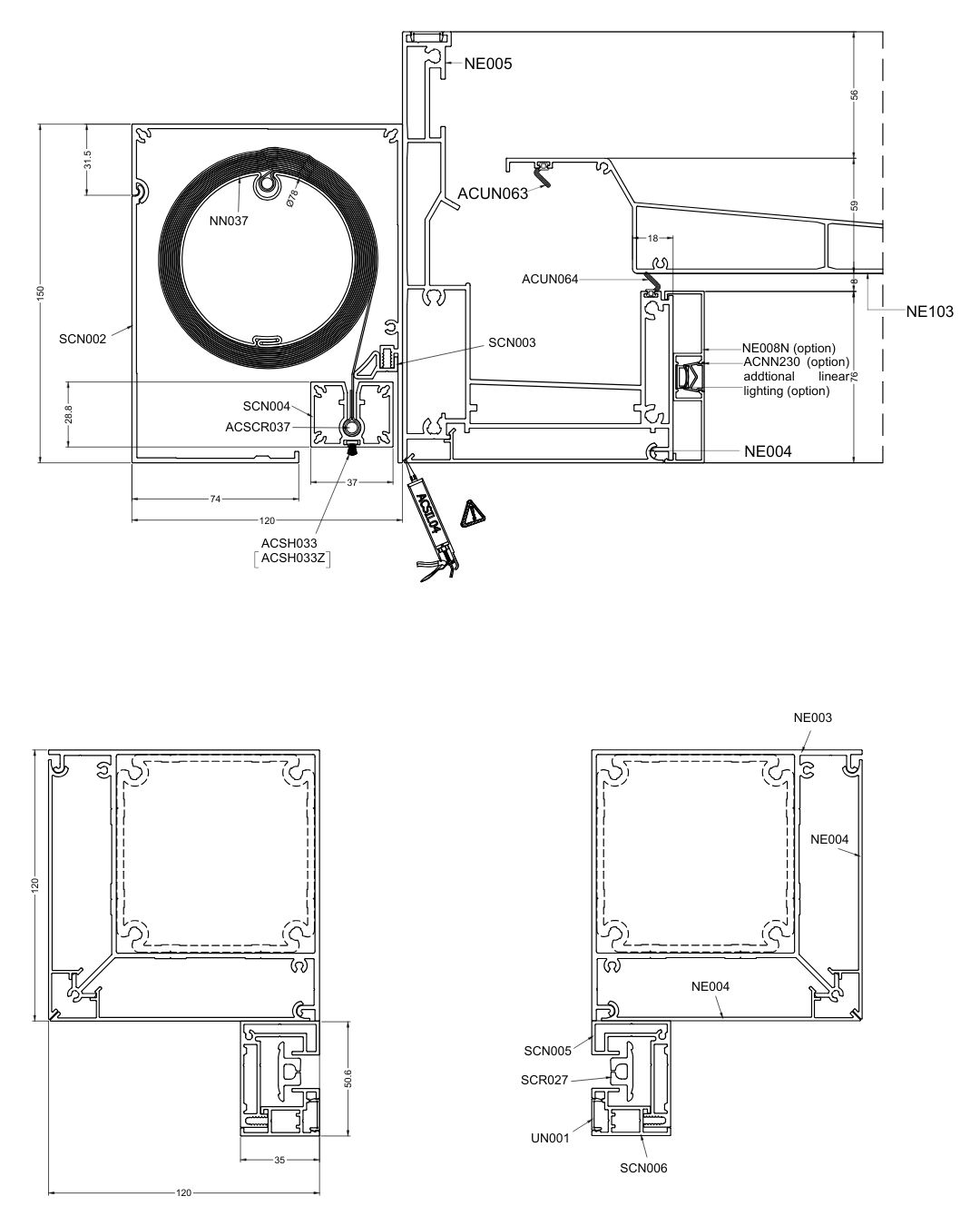
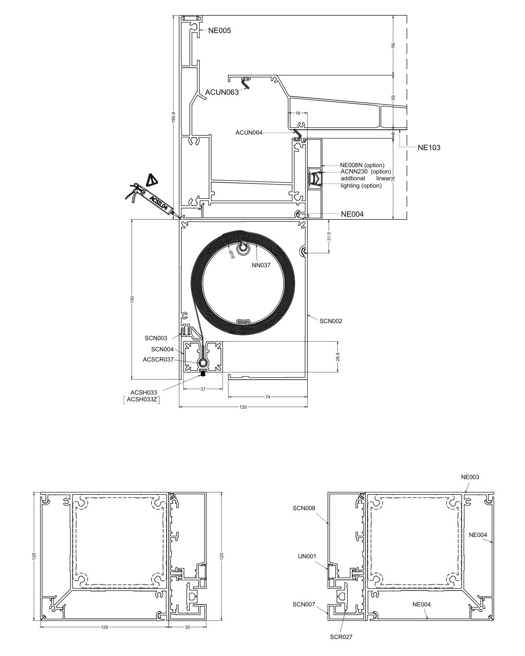
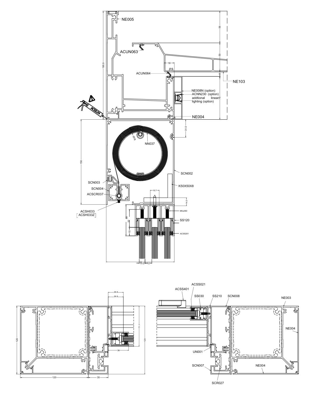
Protection moderne conçue pour les grandes surfaces vitrées et les espaces extérieurs. Le ZIP-Screen ECO est un système avancé de protection solaire, pensé pour les grandes dimensions et l’architecture contemporaine. Grâce à l’utilisation d’un coffre de dimensions 120 × 150 mm, le système permet la réalisation de stores d’une largeur pouvant atteindre 6000 mm.

Où est-il le plus adapté ? Le ZIP-Screen ECO est une solution idéale pour les grandes surfaces vitrées dans les maisons individuelles, les terrasses et jardins d’hiver, les pergolas bioclimatiques, les restaurants et espaces horeca, ainsi que les bureaux et bâtiments commerciaux.

Avantages

Conçu pour les grandes réalisations

Le système a été conçu pour les projets de grande envergure :

  • largeur : 700 – 6000 mm
  • hauteur : 500 – 3000 mm

Cela permet de couvrir même de très larges surfaces vitrées sans diviser la structure en modules plus petits.

Toiles

Toiles – Fonctionnalité et design. Le système propose un large choix de toiles screen. Facteur d’ouverture : 0 %, 1 %, 4 %, 5 %. Les toiles permettent de contrôler la quantité de lumière, d’assurer l’intimité et de protéger contre la surchauffe des intérieurs. Large palette de couleurs : blancs, gris, anthracites, beiges, teintes naturelles et noir profond.

Commande et automatisation

Le ZIP-Screen ECO peut être commandé de différentes manières :

  • télécommandes radio (1, 5, 16, jusqu’à 63 canaux)
  • commande murale
  • systèmes smart home (par ex. TaHoma)
  • capteurs de vent (protection automatique)

Moteurs Somfy (IO, RTS).
L’automatisation complète améliore le confort et la sécurité d’utilisation.

Solution pour pergolas et toitures

Le ZIP-Screen ECO est parfaitement compatible avec les pergolas en aluminium, les toitures de terrasse, les jardins d’hiver et les grands systèmes coulissants. Possibilités de montage : entre les poteaux de la structure, à l’extérieur de la structure, en configuration avec des vitrages coulissants de type slide glass.

Stabilité et résistance aux conditions climatiques

Grâce à la technologie ZIP (guidage de la toile dans des fermetures latérales), la toile reste parfaitement tendue sur toute la hauteur. Le système résiste aux rafales de vent – absence d’effet de flottement du tissu. Des joints brosses supplémentaires améliorent l’étanchéité et la qualité de fonctionnement.

Accessoires sélectionnés

Types de boîtes

COULEURS

Couleurs standards
Couleurs personnalisées
Tissus, degrés de transparence

Galerie