AS86 SLIDE

Système de portes coulissantes et levantes-coulissantes

 
AS86 SLIDE

Caractéristiques

Système de portes levantes-coulissantes AS86 SLIDE

AS 86 Slide est une solution conçue pour la fabrication de portes coulissantes et levantes-coulissantes avec isolation thermique, basée sur des cadres à 2, 3 et 4 rails. Le système a été principalement développé pour des projets situés dans des régions au climat doux et plus chaud. Il peut également servir de séparation thermique performante, ce qui le rend parfaitement adapté aux vérandas, aux toitures vitrées et aux jardins d’hiver, en garantissant une isolation thermique adéquate et un confort d’utilisation tout au long de l’année.

Le système peut être utilisé dans toutes les configurations de construction disponibles. Selon les besoins du projet, il est possible de choisir entre deux types de dormant : HI ou ECO. La version HI offre un niveau d’isolation supérieur grâce à l’utilisation de deux ruptures de pont thermique, créant une double barrière thermique. La variante ECO constitue une solution plus économique, équipée d’une seule rupture de pont thermique positionnée au centre.

AVANTAGES DU SYSTÈME

Variantes

Le système AS 86 SLIDE peut être utilisé dans toutes les configurations de construction disponibles. Selon les exigences du projet, il est possible de choisir entre deux types de dormant : HI ou ECO.
La version HI assure une meilleure isolation thermique grâce à une double barrière thermique, tandis que la version ECO représente une alternative plus économique avec une rupture de pont thermique centrale.

Configurations

AS 86 SLIDE est disponible dans tous les schémas de construction courants. Sa compatibilité avec le système AS M ainsi qu’avec le drainage linéaire élargit encore son champ d’application. Il est également possible de concevoir des structures à un ou deux rails, y compris des solutions modernes de type pocket door (galandage), permettant de dissimuler entièrement le vantail dans le mur et d’ouvrir l’espace au maximum.

Design & fonctionnalité

Le système Aluron AS 86 SLIDE combine un design moderne avec une grande fonctionnalité, offrant de nombreuses possibilités d’adaptation aux différents projets architecturaux. La construction peut être complétée par des châssis fixes latéraux et supérieurs afin d’augmenter l’apport de lumière naturelle et d’alléger visuellement la structure. Deux méthodes de préfabrication du dormant et du vantail sont possibles – par goujonnage ou par vissage – ce qui facilite le montage et permet d’adapter le processus de production aux besoins du fabricant.

Montage simplifié

Les profils du dormant peuvent être coupés à 90° ou à 45°, ce qui offre une plus grande flexibilité de conception et un montage rapide. L’utilisation de parcloses simplifie le vitrage ainsi que le remplacement éventuel des vitrages à l’avenir.

Large choix de ferrures

Le système permet l’utilisation de ferrures avec crochet intégré dans la crémone, sans nécessité d’usinage de poches supplémentaires. Cela permet non seulement de gagner du temps en production, mais aussi d’assurer une finition esthétique de haute qualité. n large choix de ferrures est disponible, notamment de fabricants reconnus tels que Master et Roto, ainsi que des solutions dédiées Master spécialement conçues pour les versions levantes-coulissantes.

Isolation thermique

Le système accepte des vitrages d’une épaisseur de 21 à 32 mm pour les portes coulissantes. Il permet d’atteindre une performance thermique de Ud = 1,7 à 1,5 W/m²K avec un vitrage double (simple chambre).

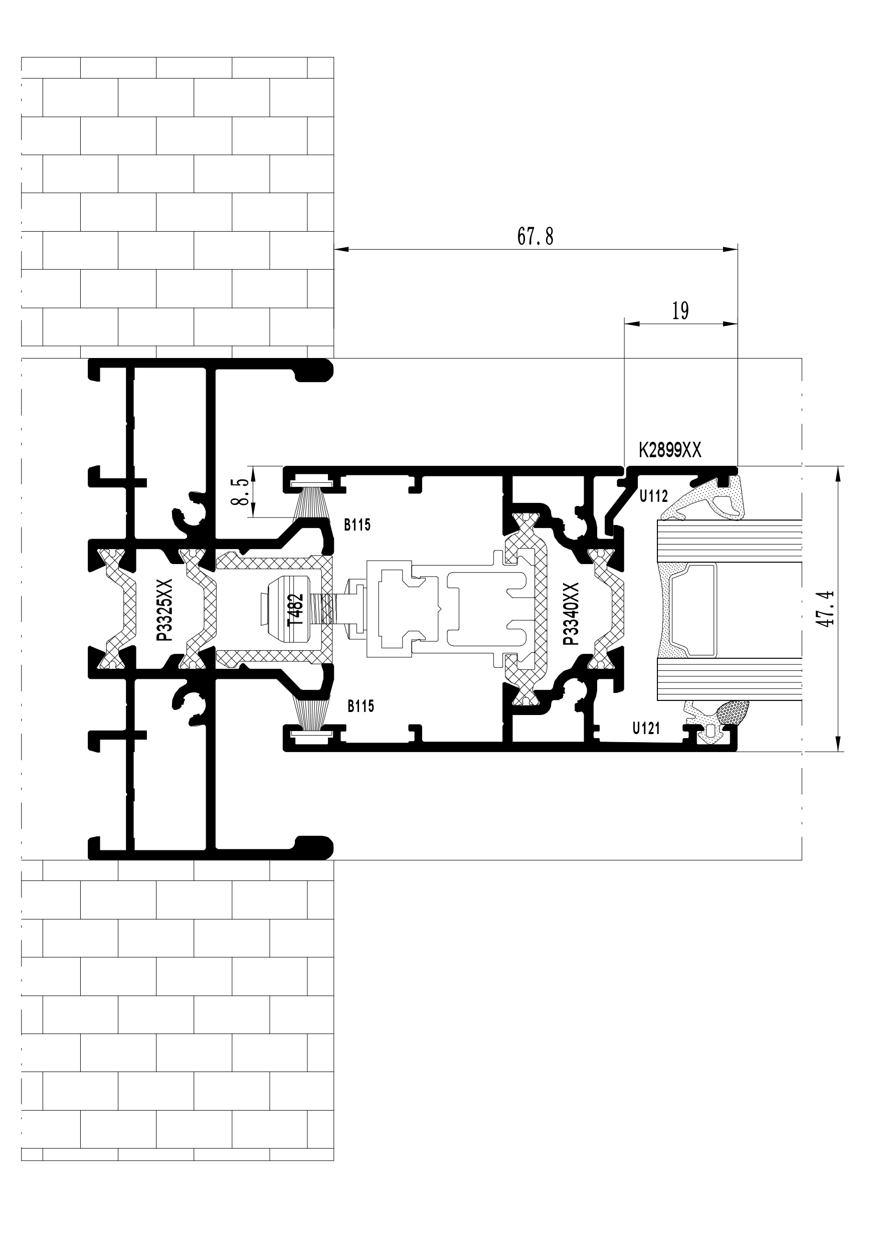
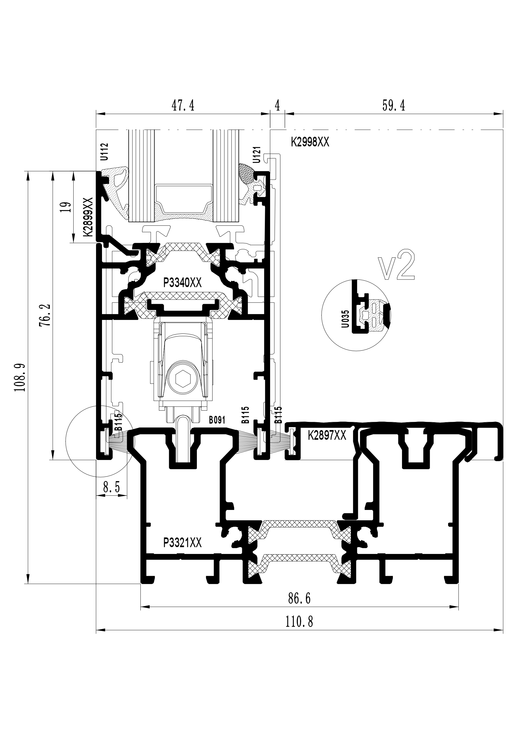
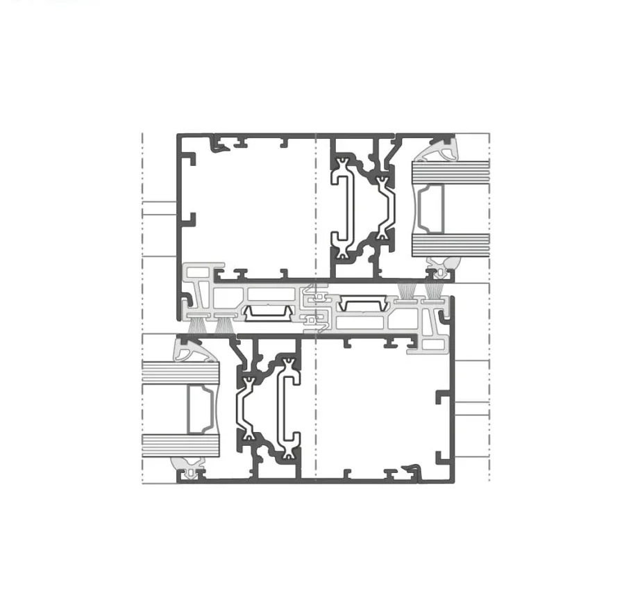
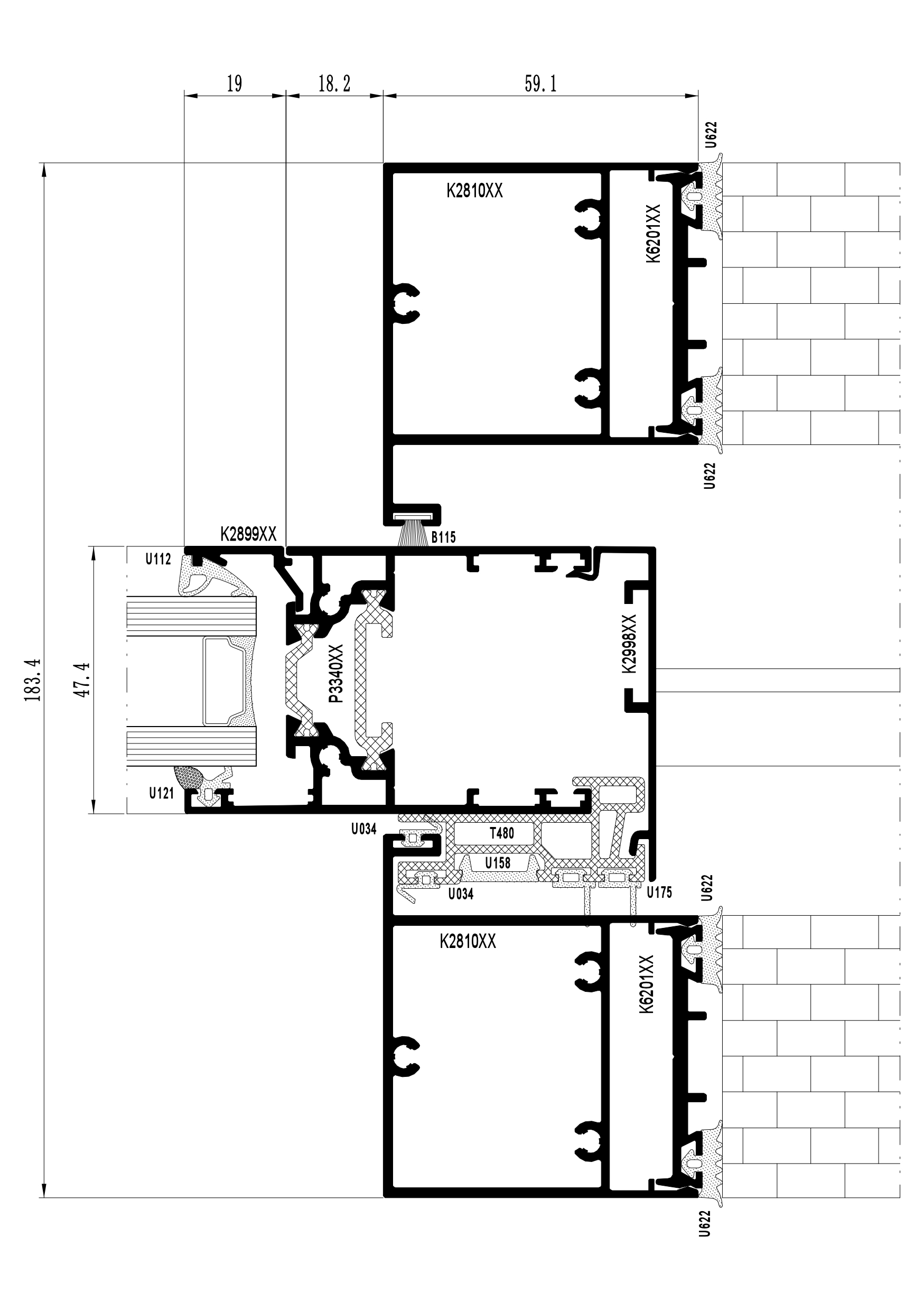
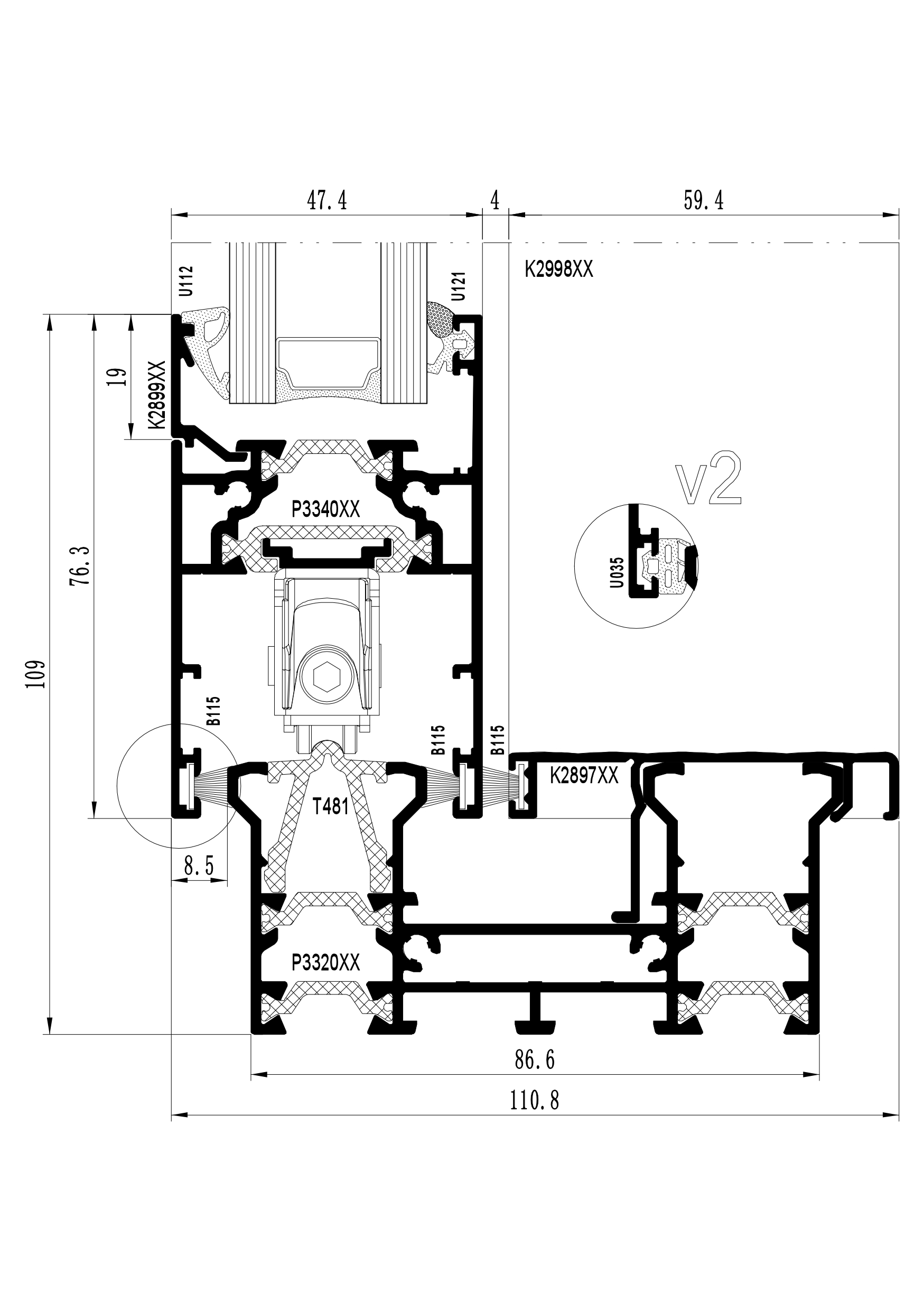
COUPES

Paramètres techniques sélectionnés – AS86 Slide

Hauteur maximale de la structure

2700 mm

Largeur maximale du vantail

2500 mm

Poids maximal du vantail

200 kg

Épaisseur de vitrage

21-32 mm

Profondeur du vantail

47 mm

Profondeur de construction (2 rails)

110 mm

Profondeur de construction (3 rails)

174 mm

Isolation thermique possible Ud (3000 × 2200 mm)

à partir de 1,5 W/m²K

Perméabilité à l’air

classe 3

Étanchéité à l’eau

classe 7A

Résistance au vent

classe C3

Couleurs

Couleurs standard
Couleurs personnalisées
Couleurs imitant le bois
Peinture structurale

Galerie