Econoline 51
Système de construction de cloisons internes
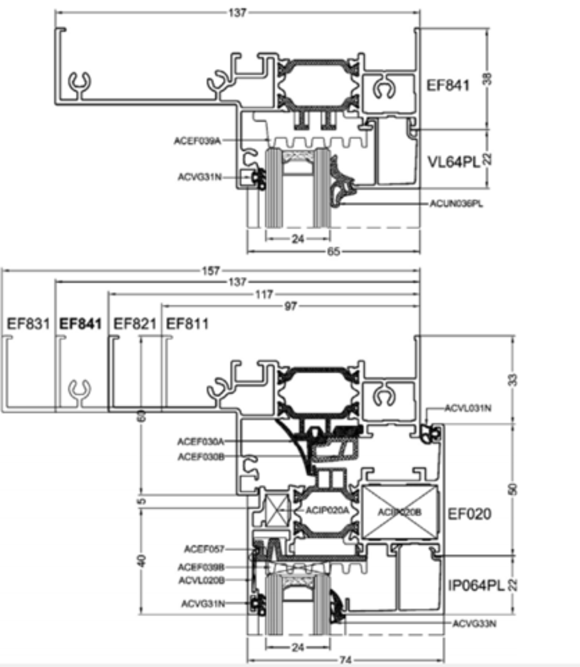
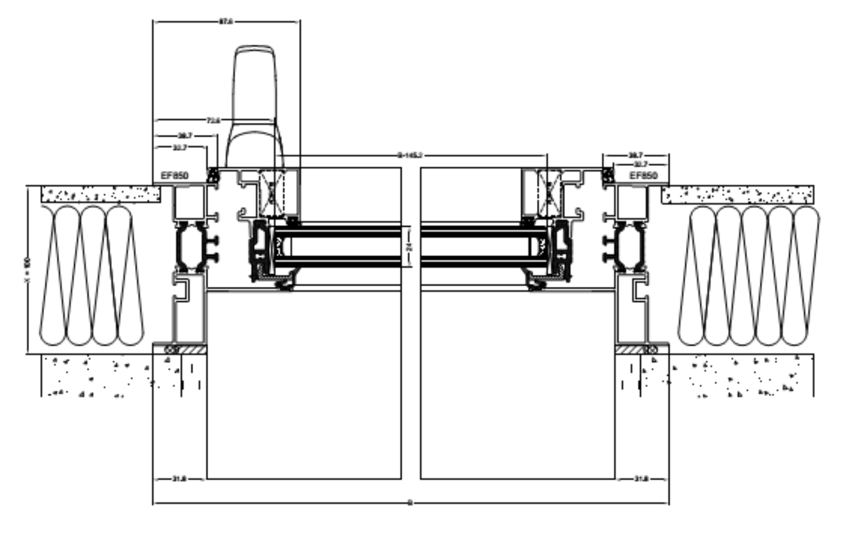
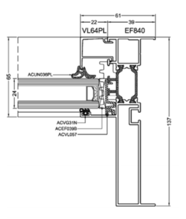
Aliplast Ecofutural 65 est un système de fenêtres et de portes aux propriétés thermiques accrues. Avec un dormant de 65 à 153 mm et un ouvrant de 74 mm de profondeur, il se caractérise par l’utilisation d’un intercalaire thermique dans les endroits qui exigent l’augmentation des paramètres thermiques. Il existe dans deux versions: ECOFUTURAL i qui possède une isolation thermique supplémentaire à l’endroit où la vitre adhère au profilé et ECOFUTURAL i+ qui en plus possède une isolation entre les intercalaires thermiques. Toutes ces pro priétés permettent d’atteindre un coefficient de transmission thermique Uf à partir de 1,5 W/m2K.
Aliplast Ecofutural OC est une extension du système décrit ci-dessus, se caractérisant par une forme innovante du cadre qui couvre toute la hauteur de l’ouvrant. En plus, il est équipé d’une parclose invisible de l’intérieur. La structure du système permet de concevoir une fenêtre de type Monobloc, et un meneau mobile très étroit de 77 mm de largeur donne un look léger et svelte à toute la construction.
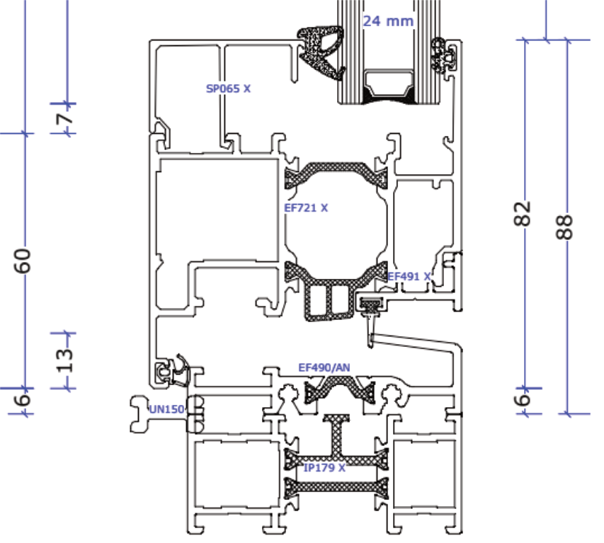
Les excellentes propriétés thermiques – Uf à partir de 1,27 W/ m2K. Telles propriétés thermiques sont possibles grâce à l’utilisation d’une isolation thermique supplémentaire à l’endroit où la vitre adhère au profilé et d’une isolation entre les intercalaires thermiques.
La structure innovante du système permet la conception de la porte PIVOT avec un axe de rotation déporté (même jusqu’aux 300 mm) ainsi qu’une fenêtre de type Monobloc ou bien un cadre de rénovation. En plus, il existe la possibilité de cintrer des profilés afin d’obtenir des formes inhabituelles des fenêtres.

Dans la version du système Ecofutural OC le cadre est conçu de manière qu’il couvre entièrement l’ouvrant ce qu’on appelle “un ouvrant caché” – une parclose reste invisible de l’intérieur. En plus, un meneau mobile très étroit de 77 mm de largeur, donnent un look léger et svelte à toute la construction.
Les fenêtres et les portes du système Ecofutural sont disponibles dans toutes les couleurs RAL. En outre, elles sont également fabriquées dans la palette Aliplast Wood Color Effect, qui reflète parfaitement la beauté des couleurs de bois, ainsi que dans le système Decoral, qui comprend aussi des couleurs de bois, des imitations de marbre, de granit et autres motifs. Une solution intéressante est la possibilité de créer une structure bicolore, où les profils à l’extérieur et à l’intérieur ont une couleur différente.
|
Profondeur du dormant |
65-153 mm |
|
Profondeur de l’ouvrant |
74 mm |
|
Épaisseur du vitrage |
Fixe : 4–50 mm / Fenêtre : 13–59 mm |
|
Type de fenêtres |
fixe, ouvrant à la française, oscillo-battant |
|
Type de porte |
à un ou deux vantaux |
|
Isolation thermique Uf* |
EF à partir de 1,50 W/m2K | EF i à partir de 1,44 W/m2K | EF i+ à partir de 1,27 W/m2K |
|
Perméabilité à l’air |
Classe 4; PN-EN 12207 |
|
Résistance au vent |
Classe C4 (1600 Pa); PN-EN 12210 |
|
Étanchéité à l’eau |
Classe 9A (600 Pa); PN-EN12208 |

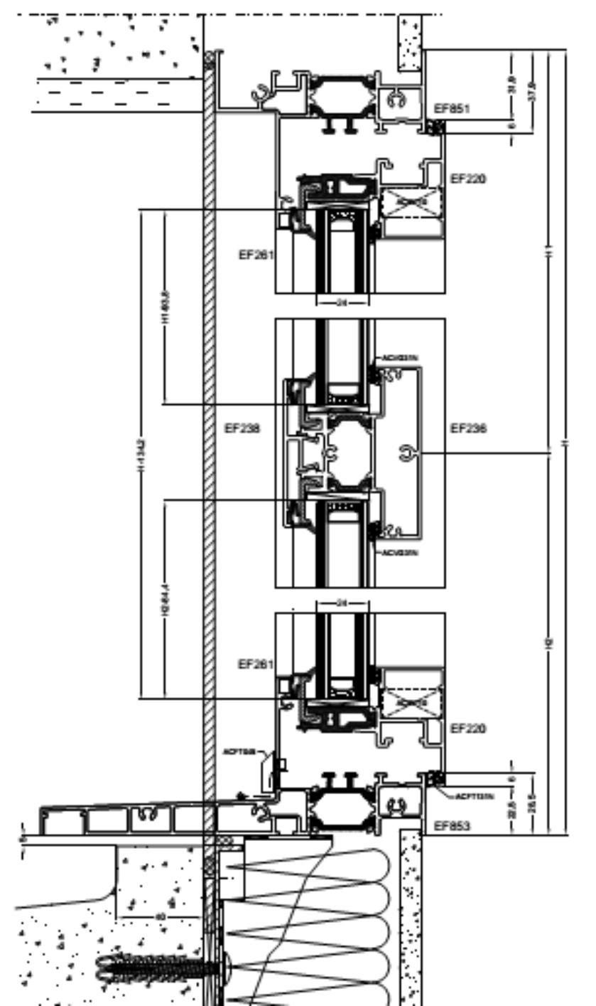
Dormants de rénovation: il est possible d’utiliser des profils de finition extérieurs qui se clipsent depuis l’extérieur.
Les fenêtres et les portes basées sur le système Aliplast Ecofutural sont disponibles dans une large gamme de couleurs.